
SLHSJ Twin-Shaft Paddle Mixer
Model: SLHSJ Series
mixed weight: 250-2000kg/bat
Certification: CE & SGS & ISO
Application: Widely used in feed, food, food, chemical, pharmaceutical, pesticide and other industries
Product Description
RICHI Machinery as supplier of Twin Shaft Paddle Mixer. SLHSJ Series Twin-Shaft paddle Mixer machine is widely used for mixing of powder,pellet,flake, block, and hetero-like viscous material in feed,grain,food,Chemical industry,etc.
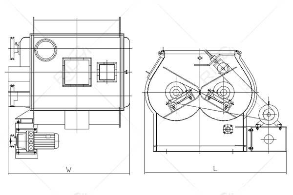
working principle
Straight-leaf machine SLHSJ series double-shaft paddle type consists of two rotors with opposite rotation directions. The rotor is welded with a plurality of blades with special angles. The paddle belt animal material rotates counterclockwise along the inner wall of the machine slot; The material is turned left and right; at the intersection of the two rotors, a weight loss zone is formed. In this area, regardless of the shape, size and density of the material, the material can be floated and in an instantaneous weightless state, so that the material forms an all-round continuous cycle in the machine slot, interlacing and shearing, thereby achieving rapid softness. Mix evenly.
-
- SLHSJ series double-shaft paddle type consists of two rotors with opposite rotation directions. The rotor is welded with a plurality of blades with special angles. is widely used for mixing of powder,pellet,flake, block, and hetero-like viscous material in feed,grain,food,Chemical industry,etc.
SLHSJ Twin-Shaft Paddle Mixer Details
Features
1. Low speed and gentle mixing, stable running and no segregation; High homogeneity (CV≤3~5%) with short dry mixing (60~90s) and discharging time.
2. Fully-open bomb doors and W-shaped trough plus unique air-sac seal, momentary discharging, minimum residue, no leakage; optional stainless steel design.
3. Large access door and optional air-clean device, ease of cleaning and maintenance.
4. Original " Double-door at full length of machine groove" patented technology, quick discharge with minimum residue.
5. Large access door, reasonable design, convenient for cleaning and maintenance, saving time.
6. Access door with limit switch can ensure worker's safety.
7. Applicable to a wide range of industries for mixing, large effective volume; Can add a variety of liquids (such as water, molasses, oil, etc).
8. Smooth running, gentle mixing, without damaging the original characteristics of materials.
9. Short mixing time (45-60 sec/bat), CV≤ 5%, little power consumption.
Parameter
| SLHSJ Series Twin-Shaft Paddle Mixer | ||||||
| Model | SLHSJ0.5A | SLHSJ0.5B | SLHSJ1.0A | SLHSJ1.0B | SLHSJ2.0A | SLHSJ4.0A |
| Material quality | carbon steel | Stainless steel | carbon steel | Stainless steel | carbon steel | carbon steel |
| Power | 5.5kw | 5.5kw | 7.5kw | 7.5kw | 18.5kw | 30kw |
| Mixed weight | 250kg/P | 250kg/P | 500kg/P | 500kg/P | 1000kg/ | 2000kg/ |








